БЕЛОРУССКИЙ ПРОИЗВОДИТЕЛЬ ИГРОВЫХ, СПОРТИВНЫХ ПЛОЩАДОК И МАФ
Минск
Богдановича, 155 Б, оф.608
+375173650814
+375447890068
+375291078766
ksil-igroland@ksil.by
Избранное
На главную
Каталог
О компании
Архитекторам
Новинки
Контакты
Избранное
Главная
Каталог
СПОРТИВНОЕ ОБОРУДОВАНИЕ
Спортивные комплексы
Детский спортивный комплекс - М9200
Детский спортивный комплекс - М9200
Добавить в избранное
Стоимость
: по запросу
Характеристики
Артикул
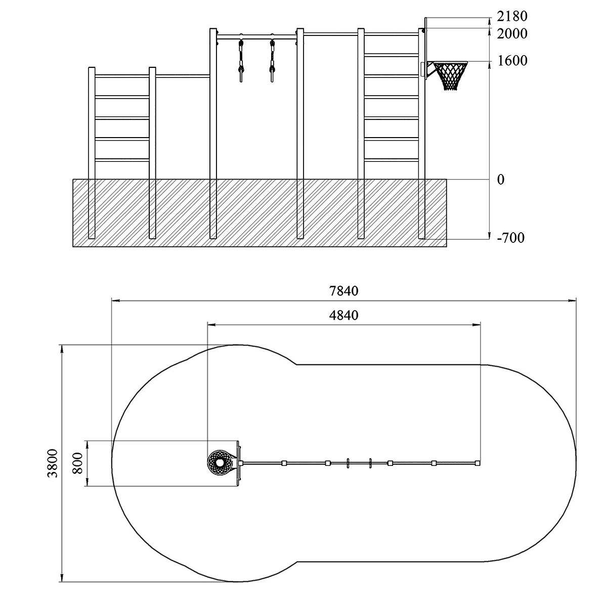
: М9200
Габаритные размеры
: 4840 х 800 х 2180 мм
Возрастная группа
: от 4 до 7 лет
Скачать проект
М9200_2D.DWG
[67.99 КБ]
М9200_3D.DWG
[4.15 МБ]
М9200.SKP
[1.17 МБ]
М9200_3D
[289.64 КБ]
М9200_3D.STL
[198.95 КБ]
Описание
Характеристики
Артикул
: М9200
Габаритные размеры
: 4840 х 800 х 2180 мм
Возрастная группа
: от 4 до 7 лет